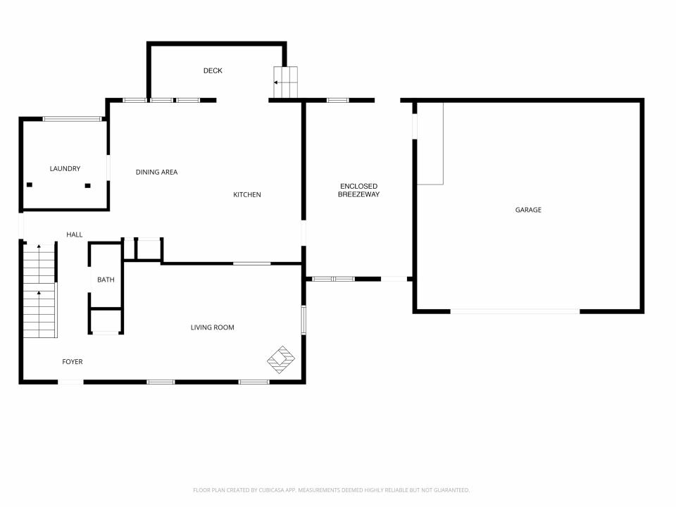
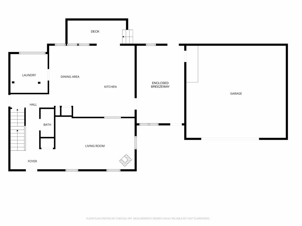
This spacious 3 bed 2.5 bath home sits on a beautiful acre with a nice large level backyard and deeded access to Rainbow Lake just a short walk away. With access to the C7 corridor trail many recreational options are around the corner. The home has great updates with new carpet in the living room, a newly constructed enclosed breezeway, interior painting, and a new furnace. Home was designed with larger bedrooms and a main level laundry/office. Location is a great more rural private atmosphere but just a short commute to Saranac Lake, the VIC and many other areas of enjoyment.

MLS#206059
703 County Route 60 , Rainbow Lake
$279,900
Listing courtesy of Adirondack Premier Properties Berkshire Hathaway HomeService
Mortgage Calculator
Home Value
Down Payment
Interest Rate
Term (years)
Estimated monthly payment =
Property Information
Price:
$279,900279900
MLS#:
206059
Type:
Residential
Area: Rainbow Lake, New York
Acres:
1.00
Zoning:
Residential
School District:
Saranac Lake
Tax Map:
367.-1-4-30
Total Taxes:
$3,497
Style:
Adirondack
Year Built:
1989
SQFT:
1,758
Seasonal:
Yes
Beds:
3
Baths:
2
Half Baths:
1
Garage / Carport:
Yes
Heating:
Forced Air, Free Standing Stove, Propane, Oil
Electrical:
200+ Amp Service